Erkenntnisse gezielt übersetzen

FORSCHUNG & ENTWICKLUNG

Forschung mit Perspektive

Unsere Forschung beginnt nicht im Labor, sondern mit einer konkreten Fragestellung aus der Baupraxis: Wie lässt sich ein neuartiger Baustoff sinnvoll verarbeiten? Welche Anforderungen stellt der Markt an Bauteile, Prozesse oder ganze Systeme?

Entlang realer Wertschöpfungsketten entwickeln wir technologische Lösungen – sei es durch die Mitentwicklung biobasierter Dämmstoffe, die Validierung neuartiger Materialien im 1:1-Maßstab oder die Konfiguration automatisierungsfähiger Planungsdaten. Unser Anspruch ist dabei immer: aus Wissen Wirkung machen. 

Bild: © K&T

Forschung mit Perspektive
Anwendungsnah & vernetzt

Ob bei der Entwicklung von Leitdetails für neue Bauweisen, bei Zulassungsverfahren für innovative Bauteile oder bei der baukonstruktiven Integration von CO₂-bindenden Materialien: Wir forschen ganzheitlich und praxisorientiert.

Dank unserer Expertise in den Bereichen Simulation, Bauphysik, Normung und Produktentwicklung verbinden wir wissenschaftliche Tiefe mit baulicher Realität. Durch unsere enge Zusammenarbeit mit Partnern aus den Bereichen Chemie, Maschinenbau, Architektur und Fertigteilindustrie stellen wir sicher, dass unsere Lösungen technisch tragfähig und wirtschaftlich umsetzbar sind.

Bild: © K&T

Anwendungsnah & vernetzt
Vom Prototyp zum Produkt

Wir gestalten unsere Forschungsprojekte so, dass der Transfer in reale Bauvorhaben gelingt: Mithilfe von Konfiguratoren für Grundrissvarianten werden Planungsdaten erzeugt, die sich bis zur Fertigung weiterverarbeiten lassen. Bioaerogele werden mit geeigneten Einbauteilen kombiniert und für industrielle Prozesse vorbereitet.
Dabei begleiten wir Projekte entlang des gesamten Innovationspfads – vom ersten Materialscreening über Leitdetails bis zur baunahen Umsetzung. Oft übernehmen wir die Rolle einer Brücke: zwischen Grundlagenforschung und Markt, zwischen Technologieidee und Bauprodukt.

Bild: © Sfio Cracho

Vom Prototyp zum Produkt

FORSCHUNG & ENTWICKLUNGSFELDER

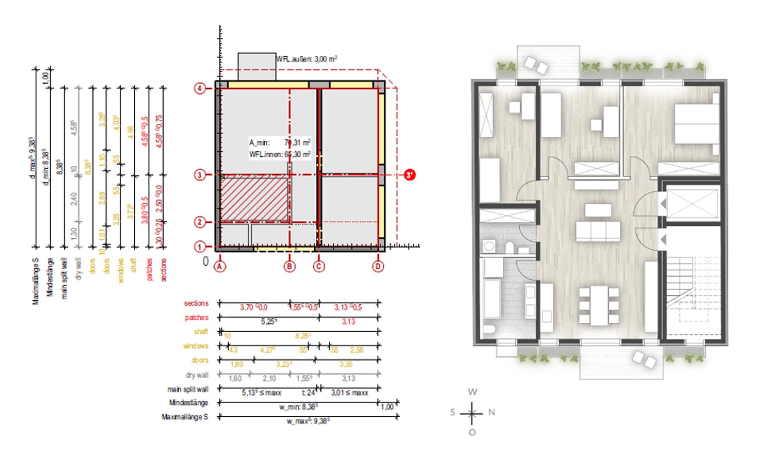
Intelligente Planungssysteme

Wir entwickeln digitale Werkzeuge, mit denen sich Grundrisse flexibel konfigurieren lassen – abhängig von Grundstücksgröße, Wohnungstyp oder gewünschter Gebäudeform.

Dabei werden schon in frühen Planungsphasen CO₂-Bilanzen, Kosten, Statik und Gebäudetechnik mitgedacht, um automatisiert robuste, energieeffiziente und wirtschaftliche Varianten zu erzeugen – abgestimmt auf die Zielprioritäten des Projekts.

Bild: © K&T

Aerogele für die Carbonbeton-Bauweise

Biogene und mineralische Aerogele bieten durch ihre extrem niedrige Wärmeleitfähigkeit große Potenziale für den Einsatz im Bauwesen – insbesondere in Kombination mit schlanken Carbonbeton-Elementen.

Wir entwickeln integrierte Einbaulösungen, die die Vorteile beider Werkstoffe systemisch verbinden, und forschen an Prozessen, wie sich Aerogele wirtschaftlich, reproduzierbar und automatisiert in Carbonbeton-Fertigbauteile einbringen lassen.

Bild: © K&T

CO₂-Bindung in Baukonstruktionen

Gebäude können und sollten künftig nicht nur weniger Emissionen verursachen, sondern aktiv zur CO₂-Speicherung beitragen.

Wir entwickeln baunahe Konzepte, die CO₂-aktive Materialien – etwa alternative Bindemittel oder CCS-fähige Komponenten – mit innovativen Bauweisen wie Carbonbeton kombinieren. Durch unsere interdisziplinäre Forschung schaffen wir die Grundlage für zirkuläre Konstruktionsprinzipien und testen erste Ansätze bereits unter realen Bedingungen.

Bild: © K&T

Wiederverwendung von End-of-Life-Materialien

Baustoffe mit Geschichte bieten enormes Potenzial für die Zukunft.
Wir entwickeln neue Baukomponenten, in denen ausgewählte End-of-Life-Materialien – etwa aus dem Rückbau oder industriellen Nebenströmen – sinnvoll integriert werden. Dabei entstehen Konstruktionsprinzipien, die nicht nur Ressourcen schonen, sondern auch hohe bauphysikalische Anforderungen erfüllen – validiert durch Simulation und Erprobung im Bauteilmaßstab.

Bild: © Helmut Peters GmbH / RWE

Begrünbarer Beton

Im Rahmen unserer Forschung entwickeln wir Textilbetonplatten, auf denen Moose und andere Pflanzen dauerhaft wachsen können. Ziel ist es, Gebäude- und Infrastrukturoberflächen zu begrünen, um Luftqualität, Mikroklima und Stadtbild zu verbessern – bei gleichzeitig minimalem Pflege- und Kostenaufwand.

Dabei arbeiten wir an einer Betonmatrix, die Wasser speichern, Nährstoffe regulieren und Vegetation ganzjährig unterstützen kann – ein Beitrag zur Klimaanpassung im urbanen Raum.

Bild: © K&T

KONTAKT

Kahnt & Tietze GmbH

Besucheradresse:
Lampestraße 6
04107 Leipzig

info@kahnttietze.de
+49-341-392856-20

NEWSLETTER

Wir informieren Sie gern über unsere neuen Produkte und Projekte.